[juicer name="yourrealestateman-alex"]
8
  • Property Type
  • Single Family Residence, Residential
  • 4
  • Bedrooms
  • 4
  • Bathrooms
  • 2
  • Garages
  • 2487 Sqft
  • Area Size
22355 SE 43rd (Lot 21) Place, Issaquah, WA 98029
  • $849,990

Description

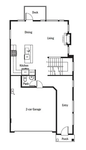
This 4 bedroom home in Providence Ridge has a double deck in the back and is currently under construction. It should be completed and can be occupied around January next year. Our homes include our 3-year warranty and incentive money with the use of our in-house lender. Buy now and choose your stylish upgrades. Located in the amazing Issaquah School District, our high school is Skyline.

  • Address: 22355 SE 43rd (Lot 21) Place
  • City: Issaquah
  • State/county: WA
  • Zip/Postal Code: 98029
  • Area: Issaquah
  • Country: US

Details

Updated on March 14, 2025 at 8:06 pm
  • Property ID NWM1490284
  • Price $849,990
  • Property Size 2487 Sqft
  • Land Area 0.0694 Acres
  • Bedrooms 4
  • Bathrooms 4
  • Garages 2
  • Garage Size x x
  • Year Built 2019
  • Property Type Single Family Residence, Residential
  • Property Status Closed

Additional details

  • Listing Terms Conventional
  • Association Fee 115
  • Roof Composition
  • Utilities Natural Gas Available,Sewer Connected,Natural Gas Connected
  • Sewer Sewer Connected
  • Flooring Ceramic Tile,Hardwood,Vinyl,Carpet
  • County King
  • Property Type Residential
  • Elementary School Sunny Hills Elem
  • Middle School Pine Lake Mid
  • High School Skyline High
  • Community Features CCRs
  • Architectural Style Craftsman

Mortgage Calculator

Contact Information

View Listings

Enquire About This Property

0 Review

Sort by:
Leave a Review

Leave a Review

Compare listings

Compare