[juicer name="yourrealestateman-alex"]
19
  • Property Type
  • Condominium, Residential
  • 3
  • Bedrooms
  • 3
  • Bathrooms
  • 1609 Sqft
  • Area Size
14022 44th SE Drive, Snohomish, WA 98296
  • $484,995

Description

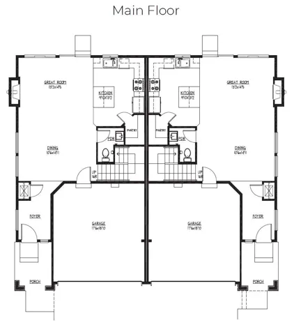
Welcome to Manchester North! We are a beautiful new community of 14 two-story townhomes ranging from 1609-1830 sf. The “Madison D” floorplan offers 1609 Sqft ~ Gourmet Island Kitchen w/quartz slab counter ~ Open great room floor plan ~ Master w/En-suite bath & Walk-in Closet Plus 2 Guest bedrooms upstairs ~ Tech Loft ~ Utility Room Up ~ All appliances and blinds included plus fully fenced and landscaped yards, 2-car side by side garage & Community Park! This is the Last East Facing Home!

  • Address: 14022 44th SE Drive
  • City: Snohomish
  • State/county: WA
  • Zip/Postal Code: 98296
  • Area: Snohomish
  • Country: US

Details

Updated on March 14, 2025 at 8:07 pm
  • Property ID NWM1500305
  • Price $484,995
  • Property Size 1609 Sqft
  • Land Area 0.0685 Acres
  • Bedrooms 3
  • Bathrooms 3
  • Garage Size x x
  • Year Built 2019
  • Property Type Condominium, Residential
  • Property Status Closed

Additional details

  • Listing Terms Cash Out,Conventional,FHA
  • Association Fee 237
  • Roof Composition
  • Utilities Natural Gas Connected
  • Flooring Hardwood,Vinyl,Carpet
  • County Snohomish
  • Property Type Residential
  • Elementary School Silver Firs Elem
  • Middle School Gateway Mid
  • High School Henry M. Jackson Hig
  • Community Features Cable TV,Fire Sprinklers,Outside Entry
  • Architectural Style Contemporary

Mortgage Calculator

Contact Information

View Listings

Enquire About This Property

0 Review

Sort by:
Leave a Review

Leave a Review

Compare listings

Compare